PROJETOS
Elaboração de Projetos de Proteção Coletiva e Individual
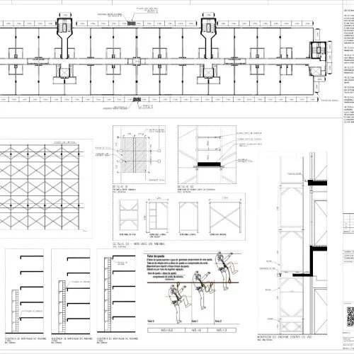
A InstrUPrev Engenharia desenvolve projetos de proteção coletiva e individual voltados à segurança do trabalho, incluindo sistemas como guarda-corpos, bandejas, linhas de vida, shafts e poços de elevadores. Todos os projetos são elaborados com o uso do AutoCAD 2D e 3D e Revit, sendo personalizados conforme as necessidades e particularidades de cada obra.
Com foco na segurança, a InstrUPrev Engenharia apresenta soluções técnicas eficientes para a implantação de sistemas de proteção coletiva, atendendo às demandas específicas de seus clientes.
Especificações Técnicas das Proteções Coletivas
Os projetos de proteção coletiva devem atender aos seguintes requisitos técnicos:
- O projeto será acompanhado de ART (Anotação de Responsabilidade Técnica) e laudo de conformidade, contemplando especificações técnicas de materiais, detalhes de construção e fixação, cálculos de resistência às cargas e esforços aplicáveis, desenhos técnicos e todos os dados necessários para garantir a eficácia do sistema.
- Laudo de conformidade referente à execução dos projetos de proteção coletiva contra quedas de trabalhadores e projeção de materiais, acompanhado da respectiva ART.
- Projeto das linhas de vida, acompanhado de ART, com especificação técnica de materiais, detalhes de construção e fixação, cálculos de resistência às cargas, desenhos técnicos, especificação de cintos de segurança e talabartes, considerando fatores de queda e outros dados necessários para garantir sua eficácia.
- Projeto de instalações elétricas provisórias, acompanhado de ART, contendo especificações dos dispositivos de proteção e aterramento, diagramas de circuitos e outros dados necessários para garantir sua execução e segurança.
- Laudo de conformidade referente à execução do projeto de instalações elétricas provisórias, incluindo medição do sistema de aterramento e dos dispositivos de aterramento de equipamentos e máquinas elétricas, acompanhado da respectiva ART.
Principais Sistemas de Proteção Oferecidos:
- Guarda-corpo
- Linha de vida
- Proteção em aberturas de piso e poço de elevador
- Proteção em aberturas de rampas e passarelas
- Andaimes (fachadeiros, tubular, simplesmente apoiado, motorizado)
- Cadeiras suspensas
- Pontos de ancoragem provisórios e definitivos
- Plataformas de proteção (bandejas primárias e secundárias)





